Caldas da Rainha house (refurbish)

Project Description

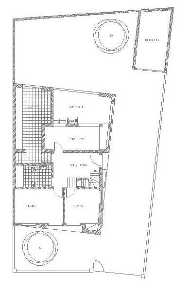
Small townhouse of the 70s. It is intended to add the house and change the layout of spaces.
The rooms were facing the front of the house, the entry will be held laterally and will be added the the living room.
Our own house is the more complicated project. The client does not impose time limits, there is always the possibility of improving it, there is always another detail to study

Project Details

Categories:

Client:

Paulo Martins Correia

Project Date:

1 December 2009