Nursing home in Palmela

Project Description

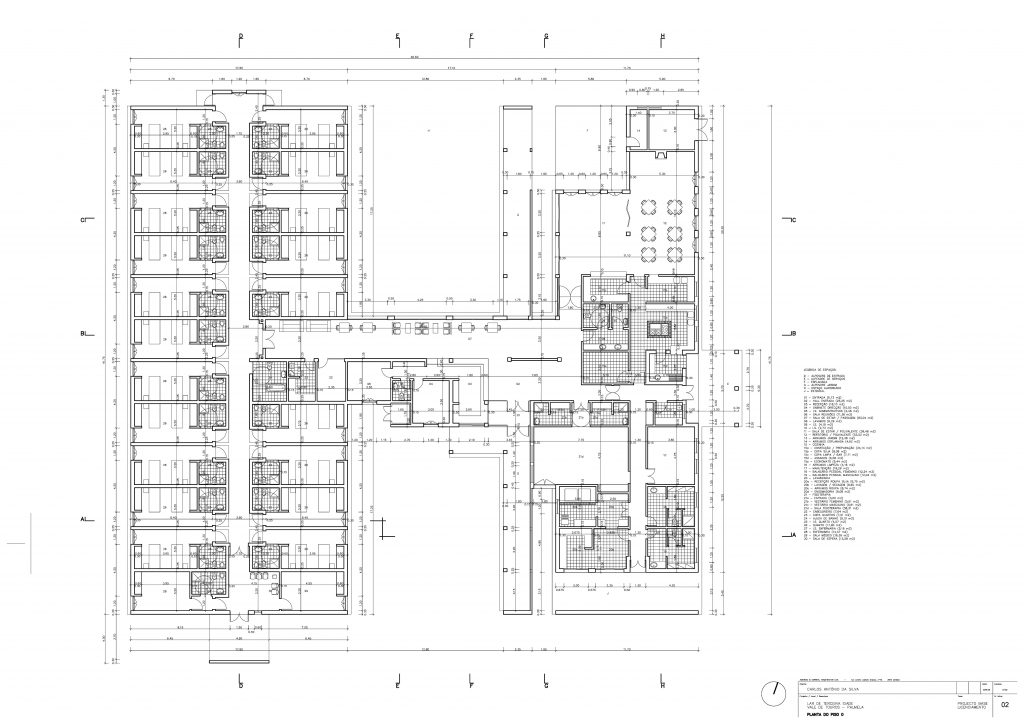
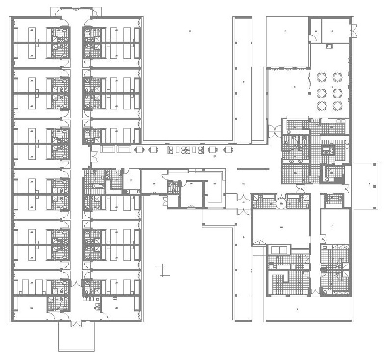
Nursing home with 20 rooms. Organized plan in H, with entrance through the center of the figure, intimate spaces on the left, common spaces and services to the right.
The great hall of the rooms receive light from a huge gutter cover, which together with the decrease of the entries of the rooms reduces the feeling of tunnel.
(project in co-authorship)

Project Details

Categories:

Client:

Carlos Antonio da Silve

Project Date:

28 May 1999